1-407-575-5392
Menu

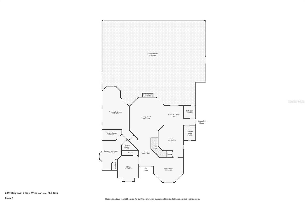
2219 Ridgewind Way, Windermere, FL

NEXT
PREV
$1,349,000

($401/sqft)

List Status: Active
2219 Ridgewind Way
Windermere, FL 34786


6 beds
3 baths
3364 living sqft
Top Features
  • Subdivision: Estates At Windermere
  • Built in  1997
  • Single Family Residence
Description
Set behind the gates of The Estates at Windermere—an intimate enclave of just 67 homes—2219 Ridgewind Way is the kind of property that stops you mid-scroll. A true Victorian-inspired residence, its architectural presence is unforgettable: a statement turret, wraparound porch, and intricate trim work that feels both rare and timeless in today’s market. It’s not just different—it’s irreplaceable. Inside, soaring ceilings and natural light highlight detailed millwork and thoughtfully designed living spaces that balance character with livability. The kitchen delivers where it counts—gas cooktop, stainless steel appliances, and rich wood cabinetry—anchoring both everyday life and effortless entertaining. Formal and casual spaces connect seamlessly, creating flow without sacrificing definition. The primary suite is privately positioned on the main floor, featuring a recently refreshed, spa-inspired bath. A secondary downstairs bedroom offers flexibility for guests or a true work-from-home setup, while four additional bedrooms upstairs provide the space today’s buyers are searching for. And then—the lot. Set on a rare .63 acres, outdoor living feels like a private retreat. A saltwater pool, lush landscaping, and multiple areas to unwind create a setting that’s equal parts peaceful and functional. It’s the kind of backyard that’s increasingly hard to find in Windermere. Location seals it: gated privacy just minutes from top-rated schools, parks, dining, shopping, farmers markets, hospitals, major highways and everything that makes Windermere one of Central Florida’s most sought-after places to live. Distinctive. Hard to replicate. Worth seeing in person.
Property Details
Additional Information
Additional Lease Restrictions
Confirm all restrictions with HOA/County
Additional Parcels YN
false
Additional Rooms
Inside Utility
Alternate Key Folio Num
272301251900320
Appliances
Dishwasher, Disposal, Dryer, Electric Water Heater, Range, Refrigerator, Tankless Water Heater
Approval Process
Confirm all restrictions with HOA/County
Architectural Style
Victorian
Association Amenities
Fence Restrictions, Gated, Playground, Tennis Court(s)
Association Email
eawhoa@topnotchcam.com
Association Fee
653
Association Fee Frequency
Quarterly
Association Fee Includes
Maintenance Grounds, Private Road
Association Fee Requirement
Required
Association YN
true
Attached Garage YN
true
Available For Lease YN
1
Bathrooms Total Integer
4
Building Area Source
Public Records
Building Area Total
4858
Building Area Total Srch SqM
451.32
Building Area Units
Square Feet
Calculated List Price By Calculated SqFt
401.01
Carport YN
false
Community Features
Deed Restrictions, Gated Community - No Guard, Golf Carts OK, Park, Playground, Sidewalks, Tennis Court(s)
Construction Materials
Frame
Cooling
Central Air
Country
US
Current Price
1349000.00
Direction Faces
East
Elementary School
Lake Whitney Elem
Exterior Features
French Doors, Lighting, Private Mailbox, Rain Gutters, Sidewalk
Fencing
Fenced
Fireplace Features
Gas
Fireplace YN
true
Flood Zone Code
X
Flood Zone Date
2021-09-24
Flood Zone Panel
12095C0215H
Flooring
Hardwood, Tile
Foundation Details
Slab
Furnished
Unfurnished
Garage Spaces
3
Garage YN
true
Heating
Central
High School
West Orange High
Homestead YN
1
Interior Features
Built-in Features, Crown Molding, Eat-in Kitchen, High Ceilings, Primary Bedroom Main Floor, Solid Surface Counters, Thermostat, Window Treatments
Internet Address Display YN
true
Internet Automated Valuation Display YN
false
Internet Consumer Comment YN
false
Internet Entire Listing Display YN
true
Laundry Features
Laundry Room
Lease Restrictions YN
1
Levels
Two
List AOR
Orlando Regional
Living Area Meters
312.53
Living Area Source
Public Records
Living Area Units
Square Feet
Lot Features
Conservation Area, Oversized Lot
Lot Size Acres
0.63
Lot Size Square Feet
27510
Lot Size Square Meters
2556
Middle Or Junior School
SunRidge Middle
Minimum Lease
1-2 Years
Modification Timestamp
2026-04-19T14:16:09.313Z
Monthly HOA Amount
217.67
New Construction YN
false
Number Of Septics
1
Number Of Wells
1
Occupant Type
Owner
Other Equipment
Irrigation Equipment
Ownership
Fee Simple
Parcel Number
01-23-27-2519-00-320
Patio And Porch Features
Front Porch, Wrap Around
Pet Restrictions
Confirm all restrictions with HOA/County
Pets Allowed
Yes
Pool Private YN
true
Postal Code Plus 4
5823
Public Survey Range
27
Public Survey Section
01
RATIO Current Price By Calculated SqFt
401.01
Realtor Info
Brochure Available, Docs Available, Floor Plan Available, Lease Restrictions, See Attachments, Sign, Termite Bond/Warranty
Road Surface Type
Paved
Roof
Shingle
Room Count
4
Security Features
Gated Community
Senior Community YN
false
Sewer
Septic Tank
Showing Requirements
Appointment Only, Listing Agent Must Accompany
Status Change Timestamp
2026-04-19T13:44:16.000Z
Stories Total
2
Tax Annual Amount
10026.74
Tax Block
00
Tax Book Number
34-89
Tax Legal Description
ESTATES AT WINDERMERE 34/89 LOT 32
Tax Lot
32
Tax Year
2024
Total Acreage
1/2 to less than 1
Total Annual Fees
2612.00
Total Monthly Fees
217.67
Township
23
Universal Property Id
US-12095-N-012327251900320-R-N
Unparsed Address
2219 RIDGEWIND WAY
Utilities
BB/HS Internet Available, Cable Connected, Electricity Connected, Propane, Sprinkler Well, Water Connected
Vegetation
Mature Landscaping, Oak Trees, Trees/Landscaped
Water Source
Public
Waterfront YN
false
Window Features
Drapes, Shutters
Zoning
P-D
Neighborhood Map
Popup

Property Photos
Listing Photo
Listing Photo
Listing Photo
Listing Photo
Listing Photo
Listing Photo
Listing Photo
Listing Photo
Listing Photo
Listing Photo
Listing Photo
Listing Photo
Listing Photo
Listing Photo
Listing Photo
Listing Photo
Listing Photo
Listing Photo
Listing Photo
Listing Photo
Listing Photo
Listing Photo
Listing Photo
Listing Photo
Listing Photo
Listing Photo
Listing Photo
Listing Photo
Listing Photo
Listing Photo
Listing Photo
Listing Photo
Listing Photo
Listing Photo
Listing Photo
Listing Photo
Listing Photo
Listing Photo
Listing Photo
Listing Photo
Listing Photo
Listing Photo
Listing Photo
Listing Photo
Listing Photo
Listing Photo
Listing Photo
Listing Photo
Listing Photo
Listing Photo
Listing Photo
Listing Photo
Listing Photo
Listing Photo
Listing Photo
Listing Photo
Listing Photo
Listing Photo
Listing Photo
Listing Photo
Listing Photo
Listing Photo
Listing Photo
Listing Photo
Listing Photo
Listing Photo
Listing Photo
Listing Photo
Listing Photo
Listing Photo
Listing Photo
Listing Photo
Listing Photo
Listing Photo
Listing Photo
Listing Photo
Listing Photo
Listing Photo
Listing Photo
Listing Photo
Listing Photo
Listing Photo
Listing Photo
Listing Photo
Listing Photo
Listing Photo
Listing Photo
Listing Photo
Listing Photo
Listing Photo

MLS #MFRO6400508 Listing courtesy of Compass Florida Llc provided by Stellar MLS.



All listing information is deemed reliable but not guaranteed and should be independently verified through personal inspection by appropriate professionals. Listings displayed on this website may be subject to prior sale or removal from sale; availability of any listing should always be independent verified. Listing information is provided for consumer personal, non-commercial use, solely to identify potential properties for potential purchase; all other use is strictly prohibited and may violate relevant federal and state law. The source of the listing data is as follows: Stellar MLS (updated 4/19/26 11:47 AM) |

Listing Search



Translate Tool

Featured Listings
Windermere Real Estate
$664,900
4 BED
2 BATH
Welcome to Vineyards Horizon West, this stunning 4-bedroom, 2.5-bath home offers about 3,000 square feet of thoughtfully... Read More
Windermere Real Estate
$649,000
4 BED
2 BATH
Windermere Gem: Fully Updated & Move-In Ready! Discover the perfect blend of modern luxury and prime location in the hig... Read More
Windermere Real Estate
$1,349,000
6 BED
3 BATH
Set behind the gates of The Estates at Windermere—an intimate enclave of just 67 homes—2219 Ridgewind Way is the kind of... Read More
Windermere Real Estate
$1,900,000
4 BED
4 BATH
Welcome to a truly exceptional custom home in Keene's Pointe, one of Windermere’s most sought-after guard-gated communit... Read More
Windermere Real Estate
$387,500
3 BED
2 BATH
One or more photo(s) has been virtually staged. Move-in ready townhome offering a clean, functional layout with abundant... Read More
Contact Wendy Morris

407-575-5392

Wendy Morris LLC

Licensed in the State of Florida
BK 3146762
16797 Broadwater Avenue
Winter Garden, Florida 34787

Your privacy is our utmost concern. We will never sell your personal information. Privacy Policy
©2026 windermerehomes.net - all rights reserved. | Site Map