1-407-575-5392
Menu

9687 Macbride Drive, Orlando, FL

NEXT
PREV
$1,602,216

($410/sqft)

List Status: Pending
9687 Macbride Drive
Orlando, FL 32827


5 beds
4 baths
3911 living sqft
Top Features
  • Subdivision: Laureate Park
  • Built in  2026
  • Single Family Residence
Description
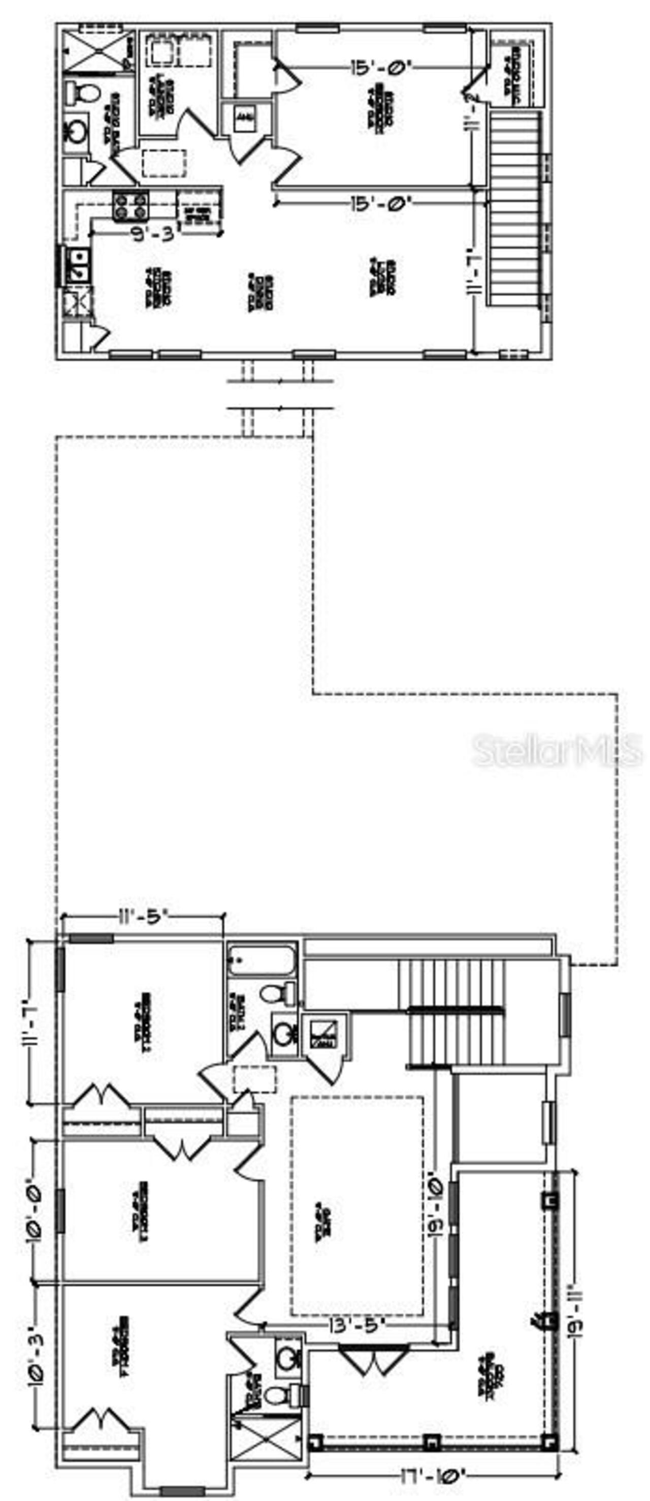
Under Construction. Welcome to The Fiji, a beautifully designed home offering over 3,900 living square feet of thoughtfully crafted living space, where elegance, flexibility, and modern comfort come together to create a home that is equally suited for relaxing evenings and lively gatherings. With five bedrooms, four and a half baths, and a spacious open layout, this home provides the perfect balance of private retreats and inviting shared spaces. Step through the foyer and into a light-filled main living area where large windows and sliding glass doors lead to the covered lanai, creating a seamless connection between indoor and outdoor living. The expansive living room flows effortlessly into the deluxe kitchen and dining area, forming the true heart of the home. The chef-inspired kitchen features premium appliances, a large center island, and a hidden walk-in pantry, offering both beauty and functionality. Just beyond, the dining area provides the perfect setting for everyday meals or special occasions, while the nearby lanai invites you to enjoy outdoor dining, morning coffee, or relaxing evenings in the Florida breeze. The first-floor primary suite is privately tucked away, creating a peaceful retreat within the home. This spacious sanctuary features dual walk-in closets and a luxurious spa-inspired bath with dual vanities and a walk-in shower. A nearby flex room adds even more versatility and can easily function as a home office, library, or additional guest space. Upstairs, two additional bedrooms share convenient access to a full bath with a third bedroom with private bath. A generous game room with access to second floor balcony creates the ideal space for movie nights, gaming, or casual gatherings. Adding exceptional flexibility to the property is a private one-bedroom, one-bath apartment located above the garage, complete with its own kitchen and laundry area. This separate living space is perfect for extended family, long-term guests, a private home office
Property Details
Additional Information
Additional Lease Restrictions
Contact HOA
Additional Parcels YN
false
Alternate Key Folio Num
302436499201150
Appliances
Built-In Oven, Cooktop, Dishwasher, Disposal, Electric Water Heater, Exhaust Fan, Microwave
Approval Process
Contact HOA
Association Approval Required YN
1
Association Email
laureatepark@artemislifestyles.com
Association Fee
535
Association Fee Frequency
Quarterly
Association Fee Requirement
Required
Association URL
laureateparkhoa.com
Association YN
true
Attached Garage YN
true
Available For Lease YN
1
Bathrooms Total Integer
5
Builder License Number
CBC1267313
Builder Model
Fiji Coastal
Builder Name
ICI Homes
Building Area Source
Builder
Building Area Total
5424
Building Area Total Srch SqM
503.91
Building Area Units
Square Feet
CDDYN
1
Calculated List Price By Calculated SqFt
409.67
Carport YN
false
Construction Materials
Block, Cement Siding, Stucco, Frame
Contract Status
Financing
Cooling
Central Air
Country
US
Current Price
1602216.00
Direction Faces
Southeast
Elementary School
Laureate Park Elementary
Expected Closing Date
2026-05-12T00:00:00.000
Fireplace Features
Electric
Fireplace YN
true
Flood Zone Code
X
Flooring
Carpet, Luxury Vinyl, Tile
Foundation Details
Slab
Furnished
Unfurnished
Garage Spaces
3
Garage YN
true
Heating
Central, Electric, Exhaust Fan, Heat Pump
High School
Lake Nona High
Interior Features
Crown Molding
Internet Address Display YN
true
Internet Automated Valuation Display YN
true
Internet Consumer Comment YN
false
Internet Entire Listing Display YN
true
Laundry Features
Inside
Lease Restrictions YN
1
Levels
Two
List AOR
Suncoast Tampa
Living Area Meters
363.34
Living Area Source
Builder
Living Area Units
Square Feet
Lot Size Acres
0.25
Lot Size Square Feet
10797
Lot Size Square Meters
1003
Middle Or Junior School
Lake Nona Middle School
Minimum Lease
1-2 Years
Modification Timestamp
2026-03-08T13:26:09.436Z
Monthly HOA Amount
178.33
New Construction YN
true
Num Of Own Years Prior To Lease
1
Num Times per Year
2
Occupant Type
Vacant
Other Equipment
Irrigation Equipment
Ownership
Fee Simple
Parcel Number
36-24-30-4992-01-150
Permit Number
BLD2025-20258
Pet Restrictions
Contact HOA
Pets Allowed
Yes
Pool Private YN
false
Projected Completion Date
2026-05-12T00:00:00.000
Property Condition
Under Construction
Public Survey Range
31
Public Survey Section
31
Purchase Contract Date
2026-03-07
RATIO Current Price By Calculated SqFt
409.67
Road Surface Type
Asphalt
Roof
Shingle
Room Count
3
Senior Community YN
false
Sewer
Public Sewer
Showing Requirements
Appointment Only
Status Change Timestamp
2026-03-08T02:47:22.000Z
Tax Annual Amount
1008
Tax Block
92
Tax Book Number
49
Tax Legal Description
LAUREATE PARK PARCEL N-2 PHASE 2 117/6 LOT 115
Tax Lot
115
Tax Other Annual Assessment Amount
2145
Tax Year
2026
Total Acreage
1/4 to less than 1/2
Total Annual Fees
2140.00
Total Monthly Fees
178.33
Township
24
Universal Property Id
US-12095-N-362430499201150-R-N
Unparsed Address
9687 MACBRIDE DR
Utilities
Cable Available, Electricity Connected, Sewer Connected, Water Connected
Water Source
Public
Waterfront YN
false
Years Of Owner Prior To Leasing Req YN
1
Zoning
R
Neighborhood Map
Popup

Property Photos
Listing Photo
Listing Photo
Listing Photo
Listing Photo
Listing Photo
Listing Photo
Listing Photo
Listing Photo
Listing Photo
Listing Photo
Listing Photo
Listing Photo
Listing Photo
Listing Photo
Listing Photo
Listing Photo

MLS #MFRO6388750 Listing courtesy of Ici Select Realty provided by Stellar MLS.

Similar Listings

$1,450,000
6043 Bimini Twist Loop
Orlando
5BR/4BA
| Active
$1,450,000
3519 Oriskany Drive
Orlando
5BR/4BA
| Active
$1,469,000
113 W Evans Street
Orlando
5BR/4BA
| Active
$1,470,000
12012 Rambling Oak Boulevard
Orlando
5BR/4BA
| Active



All listing information is deemed reliable but not guaranteed and should be independently verified through personal inspection by appropriate professionals. Listings displayed on this website may be subject to prior sale or removal from sale; availability of any listing should always be independent verified. Listing information is provided for consumer personal, non-commercial use, solely to identify potential properties for potential purchase; all other use is strictly prohibited and may violate relevant federal and state law. The source of the listing data is as follows: Stellar MLS (updated 3/9/26 6:57 AM) |

Listing Search



Translate Tool

Featured Listings
Windermere Real Estate
$825,000
6 BED
4 BATH
Major Price Improvement for quick sale, over 4000 sqft. Stunning upgraded house in Windermere Isle in Gas community, Ful... Read More
Windermere Real Estate
$1,118,990
4 BED
3 BATH
One or more photo(s) has been virtually staged. Under Construction. Sample Image Experience the perfect blend of eleganc... Read More
Windermere Real Estate
$999,998
4 BED
3 BATH
Welcome to this beautifully updated single-story pool home on a rare 0.71-acre cul-de-sac lot in Windermere’s Willows at... Read More
Windermere Real Estate
$639,900
4 BED
3 BATH
Immaculately maintained, MOVE IN READY family home in the highly sought after Preston Square neighborhood located in the... Read More
Windermere Real Estate
$1,575,000
5 BED
3 BATH
Welcome to a rare opportunity in one of Windermere’s most exquisite communities where luxury living meets farmland feel.... Read More
Contact Wendy Morris

407-575-5392

Wendy Morris LLC

Licensed in the State of Florida
BK 3146762
16797 Broadwater Avenue
Winter Garden, Florida 34787

Your privacy is our utmost concern. We will never sell your personal information. Privacy Policy
©2026 windermerehomes.net - all rights reserved. | Site Map