1-407-575-5392
Menu

9652 English Laurel Court, Orlando, FL

NEXT
PREV
$2,049,900

($414/sqft)

List Status: Active
9652 English Laurel Court
Orlando, FL 32827


6 beds
6 baths
4954 living sqft
Top Features
  • Frontage: Pond
  • View: Water
  • Subdivision: Laurel Pointe Ph 1
  • Built in  2023
  • Single Family Residence
Description
Property Details
Additional Information
Additional Lease Restrictions
Buyer to verify all leasing restrictions
Additional Parcels YN
false
Additional Rooms
Attic, Bonus Room, Den/Library/Office, Inside Utility
Alternate Key Folio Num
312431487600120
Appliances
Bar Fridge, Convection Oven, Cooktop, Dishwasher, Disposal, Gas Water Heater, Microwave, Range Hood, Refrigerator, Tankless Water Heater, Water Softener
Architectural Style
Traditional
Association Email
christina.wuersch@fsresidental.com
Association Fee
248
Association Fee Frequency
Monthly
Association Fee Includes
Pool, Internet, Management, Security
Association Fee Requirement
Required
Association YN
true
Attached Garage YN
true
Available For Lease YN
1
Bathrooms Total Integer
7
Builder Model
Corbeil Farmhouse
Builder Name
Toll Brothers
Building Area Source
Public Records
Building Area Total
6593
Building Area Total Srch SqM
612.51
Building Area Units
Square Feet
CDDYN
1
Calculated List Price By Calculated SqFt
413.79
Carport YN
false
Community Features
Clubhouse, Community Mailbox, Deed Restrictions, Dog Park, Fitness Center, Gated Community - No Guard, Park, Playground, Sidewalks, Tennis Court(s), Street Lights
Construction Materials
Block, Stucco
Cooling
Central Air, Attic Fan
Country
US
Cumulative Days On Market
201
Current Price
2049900.00
Direction Faces
East
Elementary School
Laureate Park Elementary
Exterior Features
Lighting, Outdoor Grill, Shade Shutter(s), Sidewalk, Sliding Doors, Sprinkler Metered
Fencing
Fenced
Fireplace Features
Electric
Fireplace YN
true
Flood Zone Code
X
Flood Zone Date
2018-06-20
Flood Zone Panel
12095C0650G
Flooring
Carpet, Ceramic Tile, Luxury Vinyl
Foundation Details
Slab
Furnished
Unfurnished
Garage Spaces
3
Garage YN
true
Heating
Heat Pump
High School
Lake Nona High
Interior Features
Ceiling Fans(s), Eat-in Kitchen, High Ceilings, Kitchen/Family Room Combo, Living Room/Dining Room Combo, Open Floorplan, Primary Bedroom Main Floor, Solid Surface Counters, Solid Wood Cabinets, Split Bedroom, Stone Counters, Thermostat, Tray Ceiling(s), Walk-In Closet(s), Wet Bar, Window Treatments
Internet Address Display YN
true
Internet Automated Valuation Display YN
false
Internet Consumer Comment YN
true
Internet Entire Listing Display YN
true
Laundry Features
Inside, Laundry Room
Levels
Two
List AOR
Orlando Regional
Living Area Meters
460.24
Living Area Source
Public Records
Living Area Units
Square Feet
Lot Features
Cul-De-Sac, Landscaped, Sidewalk, Paved, Private
Lot Size Acres
0.23
Lot Size Square Feet
9815
Lot Size Square Meters
912
Middle Or Junior School
Lake Nona Middle School
Minimum Lease
1-2 Years
Modification Timestamp
2026-02-07T19:05:29.400Z
Monthly HOA Amount
248.00
New Construction YN
false
Occupant Type
Vacant
Other Equipment
Irrigation Equipment
Other Structures
Gazebo
Ownership
Fee Simple
Parcel Number
31-24-31-4876-00-120
Patio And Porch Features
Covered, Porch, Rear Porch, Screened
Pets Allowed
No
Pool Private YN
true
Postal Code Plus 4
8069
Previous List Price
2099900
Price Change Timestamp
2026-01-28T15:54:34.000Z
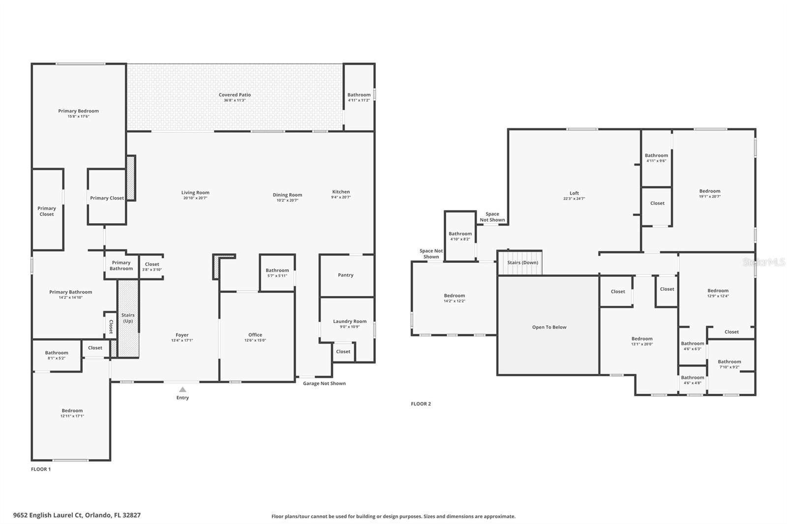
Public Remarks
Experience luxury living in the heart of Lake Nona with this designer-enhanced Toll Brothers Corbeil Farmhouse, a meticulously upgraded estate located in the prestigious gated community of Laurel Pointe at Lake Nona. Blending refined elegance with everyday comfort, this exceptional residence welcomes you with timeless curb appeal, a charming covered front porch, and an impressive double-door entry that opens into a dramatic two-story foyer with soaring 25-foot ceilings accented by a board and batten accent wall. The spacious great room showcases a coffered ceiling, custom wood beams, a soothing fireplace, and a built-in entertainment center with custom floating wood shelves, creating a stunning focal point for both gatherings and quiet evenings with family. At the heart of the home, the chef’s kitchen features an oversized quartz island, natural hand-cut stone backsplash in a double herringbone pattern, premium KitchenAid luxury appliances package, gas range, solid wood cabinetry with dovetail drawers and soft-close hardware, and both a walk-in pantry and a butler’s pantry for exceptional function and storage, while the bright casual dining area offers serene views of the private outdoor retreat. The first floor primary suite serves as a tranquil haven with custom wood beams, shiplap accent wall, dual walk-in closets, and a spa-inspired bath complete with a soaking tub, expansive luxe shower, dual vanities, and a private water closet. A convenient downstairs guest suite provides comfort and privacy for visitors. Glass barn doors lead to the Flex Room / Office.  Upstairs, a generous Bonus Room with built-in entertainment center with floating shelves anchors the upper level, surrounded by spacious secondary bedrooms including two with a shared bath and separate vanities, one with a dedicated hall bath, and another second primary suite featuring a charming barn door and window bench, along with a second primary suite offering a cedar-accented herringbone natural stone wall and private bath making it ideal for multi-generational living or luxurious guest accommodations. Step outdoors into a resort quality sanctuary where a private saltwater PebbleTec pool, elegant white quartz cut-stone decking, sun shelf with in-pool loungers, sparkling charcoal mosaic tile spa, full cabana bath, and covered lanai with cedar barnboard plank ceiling and accents provide endless opportunities for relaxation and entertaining guests. Other interior upgrades include a custom drop zone in the mud room, plantation shutters, built in surround sound system, and Guardian garage flooring. The jaw-dropping exterior is perfected by a resort-inspired pergola, an impressive outdoor kitchen with a high-end stainless steel Paradise Grill and oversized range hood, and retractable electric screens and sunshades that blur the line between indoor and outdoor living.Perfectly situated in the heart of Lake Nona, this residence offers unparalleled convenience—just moments from Medical City, the VA Hospital, Nemours, dining, upscale shopping, and the dynamic Lake Nona Town Center. Quick access to major highways, Orlando International Airport, the USTA National Campus, and world-famous theme parks and beaches ensures effortless connectivity to everything Central Florida has to offer. With every detail thoughtfully curated, this exceptional residence is ready for the most discerning buyer to call it home.
Public Survey Range
31
Public Survey Section
31
RATIO Current Price By Calculated SqFt
413.79
Road Responsibility
Private Maintained Road
Road Surface Type
Paved
Roof
Shingle
Room Count
13
Senior Community YN
false
Sewer
Public Sewer
Showing Requirements
Appointment Only, Lock Box Electronic
Status Change Timestamp
2025-11-21T23:03:38.000Z
Stories Total
2
Tax Annual Amount
32176.48
Tax Block
00
Tax Book Number
107/79
Tax Legal Description
LAUREL POINTE PHASE 1 107/79 LOT 12
Tax Lot
12
Tax Other Annual Assessment Amount
2463
Tax Year
2025
Total Acreage
0 to less than 1/4
Total Annual Fees
2976.00
Total Monthly Fees
248.00
Township
24
Universal Property Id
US-12095-N-312431487600120-R-N
Unparsed Address
9652 ENGLISH LAUREL CT
Utilities
BB/HS Internet Available, Electricity Connected, Fiber Optics, Sewer Connected, Sprinkler Meter, Underground Utilities, Water Connected
Vegetation
Mature Landscaping, Trees/Landscaped
Water Access
Pond
Water Access YN
1
Water Frontage Feet Pond
70
Water Source
Public
Water View
Pond
Water View YN
1
Waterfront Feet Total
70
Waterfront YN
true
Zoning
PD/AN
Neighborhood Map
Popup

Property Photos
Listing Photo
Listing Photo
Listing Photo
Listing Photo
Listing Photo
Listing Photo
Listing Photo
Listing Photo
Listing Photo
Listing Photo
Listing Photo
Listing Photo
Listing Photo
Listing Photo
Listing Photo
Listing Photo
Listing Photo
Listing Photo
Listing Photo
Listing Photo
Listing Photo
Listing Photo
Listing Photo
Listing Photo
Listing Photo
Listing Photo
Listing Photo
Listing Photo
Listing Photo
Listing Photo
Listing Photo
Listing Photo
Listing Photo
Listing Photo
Listing Photo
Listing Photo
Listing Photo
Listing Photo
Listing Photo
Listing Photo
Listing Photo
Listing Photo
Listing Photo
Listing Photo
Listing Photo
Listing Photo
Listing Photo
Listing Photo
Listing Photo
Listing Photo
Listing Photo
Listing Photo
Listing Photo
Listing Photo
Listing Photo
Listing Photo
Listing Photo
Listing Photo
Listing Photo
Listing Photo
Listing Photo
Listing Photo
Listing Photo
Listing Photo
Listing Photo
Listing Photo
Listing Photo
Listing Photo
Listing Photo
Listing Photo
Listing Photo
Listing Photo
Listing Photo
Listing Photo
Listing Photo
Listing Photo
Listing Photo
Listing Photo
Listing Photo
Listing Photo
Listing Photo
Listing Photo
Listing Photo
Listing Photo
Listing Photo
Listing Photo
Listing Photo
Listing Photo
Listing Photo
Listing Photo
Listing Photo
Listing Photo
Listing Photo
Listing Photo
Listing Photo
Listing Photo
Listing Photo
Listing Photo
Listing Photo
Listing Photo
Listing Photo
Listing Photo
Listing Photo
Listing Photo
Listing Photo
Listing Photo
Listing Photo
Listing Photo
Listing Photo
Listing Photo
Listing Photo
Listing Photo
Listing Photo
Listing Photo
Listing Photo
Listing Photo
Listing Photo
Listing Photo
Listing Photo
Listing Photo
Listing Photo
Listing Photo
Listing Photo
Listing Photo
Listing Photo
Listing Photo
Listing Photo
Listing Photo
Listing Photo
Listing Photo
Listing Photo
Listing Photo

MLS #MFRO6362345 Listing courtesy of Watson Realty Corp provided by Stellar MLS.

Similar Listings

$1,990,000
Orlando
6BR/6BA
| Active



All listing information is deemed reliable but not guaranteed and should be independently verified through personal inspection by appropriate professionals. Listings displayed on this website may be subject to prior sale or removal from sale; availability of any listing should always be independent verified. Listing information is provided for consumer personal, non-commercial use, solely to identify potential properties for potential purchase; all other use is strictly prohibited and may violate relevant federal and state law. The source of the listing data is as follows: Stellar MLS (updated 2/7/26 4:58 PM) |

Listing Search



Translate Tool

Featured Listings
Windermere Real Estate
$1,820,000
4 BED
3 BATH
Windermere Real Estate
$1,029,990
4 BED
4 BATH
Windermere Real Estate
$1,176,990
6 BED
4 BATH
Windermere Real Estate
$585,000
3 BED
2 BATH
Windermere Real Estate
$1,129,990
6 BED
4 BATH
Contact Wendy Morris

407-575-5392

Wendy Morris LLC

Licensed in the State of Florida
BK 3146762
16797 Broadwater Avenue
Winter Garden, Florida 34787

Your privacy is our utmost concern. We will never sell your personal information. Privacy Policy
©2026 windermerehomes.net - all rights reserved. | Site Map