1-407-575-5392
Menu

8351 Edelman Lane, Orlando, FL

NEXT
PREV
$1,999,900

($577/sqft)

List Status: Active
8351 Edelman Lane
Orlando, FL 32827


4 beds
3 baths
3467 living sqft
Top Features
  • View: Water
  • Subdivision: Laureate Park
  • Built in  2023
  • Single Family Residence
Description
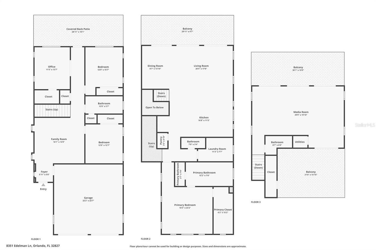
Amazing three story lakefront home where you can enjoy both morning sunrises and evening sunsets from the front porch and multiple balconies. This stunning residence offers a rare blend of modern design, flexible living spaces, and seamless indoor outdoor living across three thoughtfully designed levels. From the moment you arrive, clean architectural lines and a welcoming entry create a striking first impression. The first floor opens to a stylish foyer leading into a spacious family room filled with natural light. This level features three generously sized bedrooms, including one currently used as a home office, offering excellent flexibility for guests, multigenerational living, or remote work. A full bathroom completes this level with a layout designed for comfort and functionality. The second floor serves as the heart of the home with an expansive open concept living area ideal for entertaining and everyday living. Walls of windows create a bright and airy atmosphere throughout. The kitchen anchors the space with sleek cabinetry, custom refrigerator panels that blend seamlessly with the design, modern finishes, and ample prep and storage space. The kitchen flows effortlessly into the dining and living areas, while large glass doors open to a covered balcony overlooking the lake. From here, enjoy peaceful morning sunrises and stunning evening sunsets with water views as your backdrop. Tucked away on this level, the primary suite offers a private retreat featuring a spacious bedroom, a custom walk in closet, and a spa style bathroom with dual vanities, a freestanding soaking tub, and an oversized glass enclosed shower with multiple shower heads. The third floor is a true showpiece, featuring a spacious media and entertainment room that opens to both a rooftop balcony and an additional terrace. This level is perfect for hosting, movie nights, or simply relaxing while taking in sweeping lake views and unforgettable sunsets. The elevated outdoor terrace provide a pr
Property Details
Property Features
Property Sub Type
Single Family Residence
View
Water
Parking
Driveway, On Street, Garage Door Opener
County
Orange
Subdivision
LAUREATE PARK
Additional Information
Additional Lease Restrictions
Verify with HOA.
Additional Parcels YN
false
Additional Rooms
Family Room, Media Room
Alternate Key Folio Num
30-24-31-4840-00-870
Appliances
Built-In Oven, Cooktop, Dishwasher, Disposal, Electric Water Heater, Microwave, Range Hood, Refrigerator, Wine Refrigerator
Association Email
jtreadwell@artemislifestyles.com
Association Fee
171.93
Association Fee Frequency
Monthly
Association Fee Requirement
Required
Association URL
rudy.bautista@tavistock.com
Association YN
true
Attached Garage YN
true
Available For Lease YN
1
Bathrooms Total Integer
4
Building Area Source
Public Records
Building Area Total
4870
Building Area Total Srch SqM
452.44
Building Area Units
Square Feet
CDDYN
1
Calculated List Price By Calculated SqFt
576.84
Carport YN
false
Community Features
Association Recreation - Owned, Community Mailbox, Dog Park, Fitness Center, Golf Carts OK, Irrigation-Reclaimed Water, Park, Playground, Pool, Restaurant, Sidewalks
Construction Materials
Block, Stucco, Vinyl Siding
Cooling
Central Air
Country
US
Cumulative Days On Market
77
Current Price
1999900.00
Direction Faces
Southwest
Elementary School
Laureate Park Elementary
Exterior Features
Balcony, French Doors, Lighting, Rain Gutters, Sidewalk, Sliding Doors
Fireplace YN
false
Flood Zone Code
X500
Flood Zone Date
2018-06-20
Flood Zone Panel
12095C0650G
Flooring
Hardwood, Tile
Foundation Details
Slab
Furnished
Unfurnished
Garage Spaces
2
Garage YN
true
Heating
Central, Electric, Heat Pump
High School
Lake Nona High
Home Warranty YN
true
Homestead YN
1
Interior Features
Built-in Features, Dry Bar, Eat-in Kitchen, Kitchen/Family Room Combo, Living Room/Dining Room Combo, Open Floorplan, PrimaryBedroom Upstairs, Solid Wood Cabinets, Split Bedroom, Thermostat, Tray Ceiling(s), Walk-In Closet(s)
Internet Address Display YN
true
Internet Automated Valuation Display YN
true
Internet Consumer Comment YN
true
Internet Entire Listing Display YN
true
Laundry Features
Laundry Room
Levels
Three Or More
List AOR
Orlando Regional
Living Area Meters
322.09
Living Area Source
Public Records
Living Area Units
Square Feet
Lot Features
Landscaped, Level, Sidewalk, Paved
Lot Size Acres
0.07
Lot Size Square Feet
3248
Lot Size Square Meters
302
Middle Or Junior School
Lake Nona Middle School
Minimum Lease
No Minimum
Modification Timestamp
2026-04-23T13:00:09.309Z
Monthly HOA Amount
171.93
New Construction YN
false
Occupant Type
Owner
Other Equipment
Irrigation Equipment
Ownership
Fee Simple
Parcel Number
30-24-31-4840-00-870
Patio And Porch Features
Covered, Deck, Rear Porch
Pet Restrictions
Verify with HOA.
Pets Allowed
Breed Restrictions
Pool Private YN
false
Postal Code Plus 4
7654
Previous List Price
2099000
Price Change Timestamp
2026-03-06T18:50:41.000Z
Public Survey Range
31
Public Survey Section
30
RATIO Current Price By Calculated SqFt
576.84
Realtor Info
As-Is, CDD Addendum required, Docs Available, Floor Plan Available, No Sign
Road Surface Type
Asphalt
Roof
Shingle
Room Count
11
Senior Community YN
false
Sewer
Public Sewer
Showing Requirements
Sentri Lock Box, Appointment Only, Call Listing Agent, Listing Agent Must Accompany, See Remarks, ShowingTime
Status Change Timestamp
2026-02-05T21:54:47.000Z
Tax Annual Amount
16280
Tax Block
87
Tax Book Number
89/112
Tax Legal Description
LAUREATE PARK NEIGHBORHOOD CENTER PHASE1 89/112 LOT 87
Tax Lot
87
Tax Other Annual Assessment Amount
848
Tax Year
2024
Total Acreage
0 to less than 1/4
Total Annual Fees
2063.16
Total Monthly Fees
171.93
Township
24
Universal Property Id
US-12095-N-302431484000870-R-N
Unparsed Address
8351 EDELMAN LN
Utilities
Public
Vegetation
Mature Landscaping
Water Source
Public
Water View
Lake
Water View YN
1
Waterfront YN
false
Zoning
PD/AN
Neighborhood Map
Popup

Property Photos
Listing Photo
Listing Photo
Listing Photo
Listing Photo
Listing Photo
Listing Photo
Listing Photo
Listing Photo
Listing Photo
Listing Photo
Listing Photo
Listing Photo
Listing Photo
Listing Photo
Listing Photo
Listing Photo
Listing Photo
Listing Photo
Listing Photo
Listing Photo
Listing Photo
Listing Photo
Listing Photo
Listing Photo
Listing Photo
Listing Photo
Listing Photo
Listing Photo
Listing Photo
Listing Photo
Listing Photo
Listing Photo
Listing Photo
Listing Photo
Listing Photo
Listing Photo
Listing Photo
Listing Photo
Listing Photo
Listing Photo
Listing Photo
Listing Photo
Listing Photo
Listing Photo
Listing Photo
Listing Photo
Listing Photo
Listing Photo
Listing Photo
Listing Photo
Listing Photo
Listing Photo
Listing Photo
Listing Photo
Listing Photo
Listing Photo
Listing Photo
Listing Photo
Listing Photo
Listing Photo
Listing Photo
Listing Photo
Listing Photo
Listing Photo
Listing Photo
Listing Photo
Listing Photo
Listing Photo
Listing Photo
Listing Photo
Listing Photo
Listing Photo
Listing Photo
Listing Photo
Listing Photo
Listing Photo
Listing Photo
Listing Photo
Listing Photo
Listing Photo
Listing Photo
Listing Photo
Listing Photo
Listing Photo
Listing Photo
Listing Photo
Listing Photo
Listing Photo
Listing Photo
Listing Photo
Listing Photo
Listing Photo
Listing Photo
Listing Photo
Listing Photo
Listing Photo
Listing Photo
Listing Photo
Listing Photo
Listing Photo
Listing Photo
Listing Photo
Listing Photo
Listing Photo
Listing Photo
Listing Photo
Listing Photo
Listing Photo

MLS #MFRO6376368 Listing courtesy of Real Broker, Llc provided by Stellar MLS.

Similar Listings

$1,890,000
1315 Georgia Boulevard
Orlando
4BR/3BA
| Active
$1,975,000
9453 Golden Laurel Lane
Orlando
4BR/3BA
| Active
$1,995,000
722 Alba Drive
Orlando
4BR/3BA
| Active
$1,999,999
9744 Covent Garden Drive
Orlando
4BR/3BA
| Active



All listing information is deemed reliable but not guaranteed and should be independently verified through personal inspection by appropriate professionals. Listings displayed on this website may be subject to prior sale or removal from sale; availability of any listing should always be independent verified. Listing information is provided for consumer personal, non-commercial use, solely to identify potential properties for potential purchase; all other use is strictly prohibited and may violate relevant federal and state law. The source of the listing data is as follows: Stellar MLS (updated 5/24/26 4:22 PM) |

Listing Search



Translate Tool

Featured Listings
Windermere Real Estate
$950,000
5 BED
3 BATH
One or more photo(s) has been virtually staged. *Seller offers $20,000 credit to buyer at closing towards closing costs ... Read More
Windermere Real Estate
$562,500
3 BED
2 BATH
Improved list price.. Welcome to 9072 Woodbreeze Blvd, a beautifully maintained and thoughtfully updated home nestled in... Read More
Windermere Real Estate
$1,198,000
4 BED
3 BATH
Modern style blends with Windermere charm. This totally renovated home is located just steps from Lake Bessie in the Tow... Read More
Windermere Real Estate
$459,000
3 BED
2 BATH
A rare find in townhome living in the exclusive Lake Burden community of Windermere — this pristine corner unit sits tuc... Read More
Windermere Real Estate
$465,000
4 BED
2 BATH
Welcome to 13730 Calera Alley, a rare 4-bedroom fully furnished end-unit townhome that offers a combination that’s incre... Read More
Contact Wendy Morris

407-575-5392

Wendy Morris LLC

Licensed in the State of Florida
BK 3146762
16797 Broadwater Avenue
Winter Garden, Florida 34787

Your privacy is our utmost concern. We will never sell your personal information. Privacy Policy
©2026 windermerehomes.net - all rights reserved. | Site Map