1-407-575-5392
Menu

2750 Lee Shore Loop, Orlando, FL

NEXT
PREV
$1,499,000

($314/sqft)

List Status: Pending
2750 Lee Shore Loop
Orlando, FL 32820


5 beds
4 baths
4773 living sqft
Top Features
  • Frontage: Lake Front, Riparian Rights
  • View: Water, Trees/Woods, Pool
  • Subdivision: Country Lake Estates
  • Built in  2005
  • Single Family Residence
Description
Under contract-accepting backup offers. Do not miss this opportunity to own a lakefront home rarely available in this community, where elegance and privacy define every space. Tucked within gated Country Lake Estates, this lakefront residence offers a secluded retreat with private lake access in one of East Orlando’s most desirable settings. The main living level is thoughtfully designed to accommodate both everyday living and multi generational needs. Formal and casual spaces flow comfortably together, anchored by a chef’s kitchen that opens to a light filled family room overlooking the pool and outdoor living areas. The primary suite is located on the main floor, offering privacy and ease of living, while a separate generational living suite features its own kitchenette and private entry, ideal for extended family, guests, or long term flexibility. Outdoor living remains a focal point of the home. Covered and open patio spaces surround the pool, complemented by an outdoor kitchen suited for entertaining or quiet evenings at home. A private, tree lined walk winds through mature cypress, leading to the dock and boat lift and offering peaceful, direct access to the lake without sacrificing the home’s sense of seclusion. Upstairs, the home continues to impress with an oversized loft and a private en suite bedroom featuring a walk in closet and its own kitchenette. This level functions beautifully as a guest retreat, secondary primary style suite, or flexible living space that feels intentionally separate from the main floor. Behind the scenes, the property reflects a high level of care and investment, including an owned solar system, whole home generator, newer roof, and a dedicated RV power connection, delivering long term efficiency and peace of mind. Ideally positioned in East Orlando, the home offers convenient access to Corner Lake, nearby equestrian areas, top rated schools, major roadways, and everyday amenities, all while maintaining the quiet privacy that def
Property Details
Additional Information
Accessibility Features
Visitor Bathroom
Additional Lease Restrictions
All information deemed accurate at the time of listing, buyer responsible for verification.
Additional Parcels YN
false
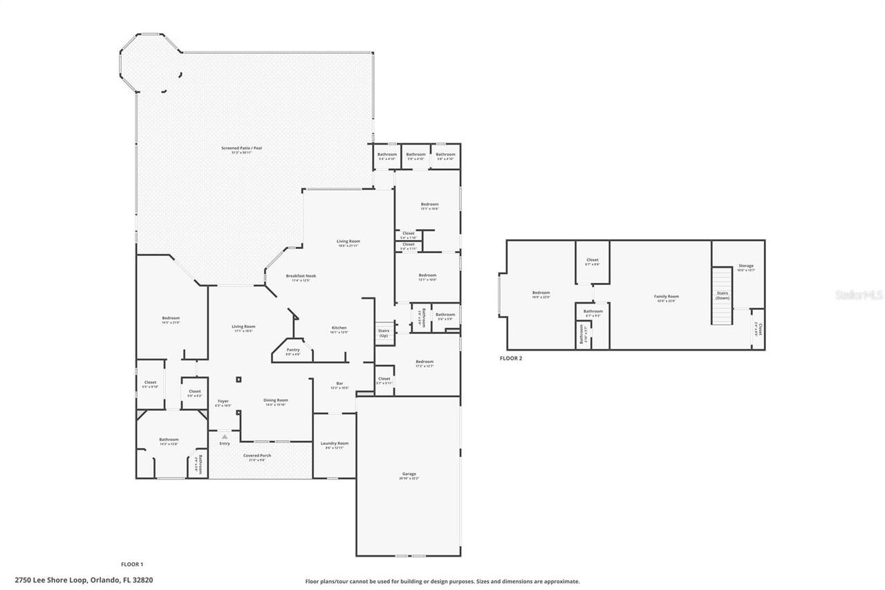
Additional Rooms
Attic, Bonus Room, Breakfast Room Separate, Den/Library/Office, Family Room, Formal Dining Room Separate, Formal Living Room Separate, Great Room, Inside Utility, Interior In-Law Suite w/Private Entry, Loft, Storage Rooms
Additional Water Information
Private spring-fed lake, skiing allowed. Lot includes riparian rights. Flood zone clarification: Home is in zone X. A portion of the lot at the lakefront is in zone AE. Per current owner: Flood insurance has never been required or needed.
Alternate Key Folio Num
16-22-32-1396-00-070
Appliances
Bar Fridge, Convection Oven, Dishwasher, Disposal, Dryer, Exhaust Fan, Freezer, Gas Water Heater, Ice Maker, Microwave, Range, Range Hood, Refrigerator, Tankless Water Heater, Washer
Approval Process
All information deemed accurate at the time of listing, buyer responsible for verification.
Architectural Style
Contemporary, Custom, Florida
Association Amenities
Gated
Association Approval Required YN
1
Association Email
countrylakeestates@folioam.com
Association Fee
432
Association Fee Frequency
Quarterly
Association Fee Includes
Common Area Taxes, Escrow Reserves Fund, Management, Private Road
Association Fee Requirement
Required
Association URL
folioam.com
Association YN
true
Attached Garage YN
true
Available For Lease YN
1
Bathrooms Total Integer
5
Building Area Source
Builder
Building Area Total
4773
Building Area Total Srch SqM
443.43
Building Area Units
Square Feet
Calculated List Price By Calculated SqFt
314.06
Carport YN
false
Community Features
Gated Community - No Guard, Sidewalks, Street Lights
Construction Materials
Block, Stucco
Contract Status
Inspections, Other Contract Contingencies
Cooling
Central Air
Country
US
Cumulative Days On Market
67
Current Price
1499000.00
Direction Faces
East
Disaster Mitigation
Above Flood Plain, Fire/Smoke Detection Integration
Elementary School
Columbia Elem
Expected Closing Date
2026-04-30T00:00:00.000
Exterior Features
Awning(s), Courtyard, Fire Pit, Garden, Lighting, Outdoor Grill, Outdoor Kitchen, Private Entrance, Private Mailbox, Private Yard, Rain Gutters, RV Hookup, Sidewalk, Sliding Doors
Fencing
Vinyl
Fireplace YN
false
Flood Zone Code
X
Flood Zone Date
2009-09-25
Flood Zone Panel
12095C0285F
Flooring
Carpet, Hardwood, Tile
Foundation Details
Slab
Furnished
Negotiable
Garage Spaces
3
Garage YN
true
Green Energy Efficient
Solar Energy Storage On Site
Green Energy Generation
Solar
Green Landscaping
Fl. Friendly/Native Landscape
Heating
Central, Electric
High School
East River High
Homestead YN
1
Interior Features
Accessibility Features, Built-in Features, Ceiling Fans(s), Central Vaccum, Coffered Ceiling(s), Crown Molding, Dry Bar, Eat-in Kitchen, High Ceilings, Kitchen/Family Room Combo, Living Room/Dining Room Combo, Primary Bedroom Main Floor, Smart Home, Solid Surface Counters, Solid Wood Cabinets, Split Bedroom, Stone Counters, Thermostat, Tray Ceiling(s), Walk-In Closet(s), Wet Bar, Window Treatments
Internet Address Display YN
true
Internet Automated Valuation Display YN
false
Internet Consumer Comment YN
false
Internet Entire Listing Display YN
true
Laundry Features
Laundry Room
Lease Restrictions YN
1
Levels
Two
List AOR
Sarasota - Manatee
Living Area Meters
443.43
Living Area Source
Builder
Living Area Units
Square Feet
Lot Features
Conservation Area, Corner Lot, Cul-De-Sac, In County, Landscaped, Oversized Lot, Private, Sidewalk, Paved, Unincorporated
Lot Size Acres
2.76
Lot Size Square Feet
120267
Lot Size Square Meters
11173
Middle Or Junior School
Corner Lake Middle
Minimum Lease
1-2 Years
Modification Timestamp
2026-03-14T01:00:09.148Z
Monthly HOA Amount
144.00
New Construction YN
false
Number Of Wells
1
Occupant Type
Vacant
Other Equipment
Fire Pit, Irrigation Equipment, Private Entrance, Private Yard, RV Hookup, Fuel Tank(s), Generator
Other Structures
Boat House, Gazebo, Outdoor Kitchen
Ownership
Fee Simple
Parcel Number
16-22-32-1396-00-070
Patio And Porch Features
Covered, Deck, Front Porch, Patio, Porch, Rear Porch, Screened, Side Porch
Pets Allowed
Cats OK, Dogs OK, Yes
Pool Private YN
true
Postal Code Plus 4
1947
Previous List Price
1550000
Price Change Timestamp
2026-02-17T19:38:18.000Z
Property Condition
Completed
Public Survey Range
32
Public Survey Section
16
Purchase Contract Date
2026-03-13
RATIO Current Price By Calculated SqFt
314.06
Realtor Info
Brochure Available, Docs Available, Floor Plan Available, Lease Restrictions, Owner Motivated, Sign
Road Responsibility
Private Maintained Road
Road Surface Type
Paved
Roof
Shingle
Room Count
13
Security Features
Gated Community, Secured Garage/Parking
Senior Community YN
false
Sewer
Public Sewer
Showing Requirements
Sentri Lock Box, Appointment Only, Call Before Showing, Call Listing Agent, Gate Code Required, See Remarks, ShowingTime
Spa Features
Heated, In Ground
Spa YN
true
Status Change Timestamp
2026-03-14T00:59:41.000Z
Stories Total
2
Tax Annual Amount
7762
Tax Block
106
Tax Book Number
55
Tax Legal Description
COUNTRY LAKE ESTATES 55/106 LOT 7
Tax Lot
7
Tax Year
2024
Total Acreage
2 to less than 5
Total Annual Fees
1728.00
Total Monthly Fees
144.00
Township
22
Universal Property Id
US-12095-N-162232139600070-R-N
Unparsed Address
2750 LEE SHORE LOOP
Utilities
BB/HS Internet Available, Cable Connected, Electricity Connected, Fiber Optics, Private, Propane, Public, Sewer Connected, Sprinkler Well, Underground Utilities, Water Connected
Vegetation
Fruit Trees, Mature Landscaping, Oak Trees, Trees/Landscaped, Wooded
Water Access
Creek, Lake
Water Access YN
1
Water Body Name
CORNER LAKE
Water Extras
Boat Ramp - Private, Fishing Pier, Lift, Lift - Covered, Skiing Allowed
Water Extras YN
1
Water Frontage Feet Lake
141
Water Source
Private, Public, See Remarks, Well
Water View
Lake
Water View YN
1
Waterfront Feet Total
241
Waterfront YN
true
Window Features
Skylight(s), Blinds, Window Treatments
Zoning
P-D
Neighborhood Map
Popup

Property Photos
Listing Photo
Listing Photo
Listing Photo
Listing Photo
Listing Photo
Listing Photo
Listing Photo
Listing Photo
Listing Photo
Listing Photo
Listing Photo
Listing Photo
Listing Photo
Listing Photo
Listing Photo
Listing Photo
Listing Photo
Listing Photo
Listing Photo
Listing Photo
Listing Photo
Listing Photo
Listing Photo
Listing Photo
Listing Photo
Listing Photo
Listing Photo
Listing Photo
Listing Photo
Listing Photo
Listing Photo
Listing Photo
Listing Photo
Listing Photo
Listing Photo
Listing Photo
Listing Photo
Listing Photo
Listing Photo
Listing Photo
Listing Photo
Listing Photo
Listing Photo
Listing Photo
Listing Photo
Listing Photo
Listing Photo
Listing Photo
Listing Photo
Listing Photo
Listing Photo
Listing Photo
Listing Photo
Listing Photo
Listing Photo
Listing Photo
Listing Photo
Listing Photo
Listing Photo
Listing Photo
Listing Photo
Listing Photo
Listing Photo
Listing Photo
Listing Photo
Listing Photo
Listing Photo
Listing Photo
Listing Photo
Listing Photo
Listing Photo
Listing Photo
Listing Photo
Listing Photo
Listing Photo
Listing Photo
Listing Photo
Listing Photo
Listing Photo
Listing Photo
Listing Photo
Listing Photo
Listing Photo
Listing Photo
Listing Photo
Listing Photo
Listing Photo
Listing Photo
Listing Photo
Listing Photo
Listing Photo
Listing Photo
Listing Photo
Listing Photo
Listing Photo
Listing Photo
Listing Photo
Listing Photo
Listing Photo
Listing Photo
Listing Photo
Listing Photo
Listing Photo
Listing Photo
Listing Photo
Listing Photo
Listing Photo
Listing Photo
Listing Photo
Listing Photo
Listing Photo
Listing Photo
Listing Photo
Listing Photo
Listing Photo
Listing Photo
Listing Photo
Listing Photo
Listing Photo
Listing Photo
Listing Photo
Listing Photo
Listing Photo
Listing Photo
Listing Photo
Listing Photo
Listing Photo
Listing Photo
Listing Photo
Listing Photo
Listing Photo
Listing Photo
Listing Photo
Listing Photo
Listing Photo
Listing Photo
Listing Photo
Listing Photo
Listing Photo
Listing Photo
Listing Photo
Listing Photo
Listing Photo
Listing Photo
Listing Photo
Listing Photo
Listing Photo
Listing Photo
Listing Photo
Listing Photo
Listing Photo
Listing Photo
Listing Photo
Listing Photo
Listing Photo
Listing Photo
Listing Photo
Listing Photo
Listing Photo
Listing Photo
Listing Photo
Listing Photo

MLS #MFRO6369687 Listing courtesy of Exp Realty Llc provided by Stellar MLS.

Similar Listings

$1,350,000
1521 E Harwood Street
Orlando
5BR/4BA
| Active
$1,350,000
2121 Vivada Street
Orlando
5BR/4BA
| Pending
$1,360,990
Lot 18 Yellowleaf Circle
Orlando
5BR/4BA
| Pending
$1,365,000
14025 Hench Lane
Orlando
5BR/4BA
| Active



All listing information is deemed reliable but not guaranteed and should be independently verified through personal inspection by appropriate professionals. Listings displayed on this website may be subject to prior sale or removal from sale; availability of any listing should always be independent verified. Listing information is provided for consumer personal, non-commercial use, solely to identify potential properties for potential purchase; all other use is strictly prohibited and may violate relevant federal and state law. The source of the listing data is as follows: Stellar MLS (updated 3/15/26 5:40 PM) |

Listing Search



Translate Tool

Featured Listings
Windermere Real Estate
$619,900
5 BED
3 BATH
PRICE IMPROVEMENT! Welcome to this stunning 5-bedroom, 3.5 bath single-family home located in the highly desirable Ashli... Read More
Windermere Real Estate
$1,129,990
6 BED
4 BATH
One or more photo(s) has been virtually staged. *Images shown are for illustrative purposes only* TIDEWATER W/BONUS - Ou... Read More
Windermere Real Estate
$925,000
4 BED
4 BATH
One or more photo(s) has been virtually staged. Located in Lake Butler Estates, one of Windermere’s most private establi... Read More
Windermere Real Estate
$599,990
3 BED
2 BATH
****Reduced 2/23/26*** This must-see home is ready to welcome you to the exclusive and upscale gated subdivision of Glen... Read More
Windermere Real Estate
$1,118,990
4 BED
3 BATH
One or more photo(s) has been virtually staged. Under Construction. Sample Image Experience the perfect blend of eleganc... Read More
Contact Wendy Morris

407-575-5392

Wendy Morris LLC

Licensed in the State of Florida
BK 3146762
16797 Broadwater Avenue
Winter Garden, Florida 34787

Your privacy is our utmost concern. We will never sell your personal information. Privacy Policy
©2026 windermerehomes.net - all rights reserved. | Site Map