1-407-575-5392
Menu

1214 Fountain Coin Loop, Orlando, FL

NEXT
PREV
$500,000

($129/sqft)

List Status: Pending
1214 Fountain Coin Loop
Orlando, FL 32828


5 beds
4 baths
3867 living sqft
Top Features
  • Subdivision: Reserve/golden Isle
  • Built in  2015
  • Single Family Residence
Description
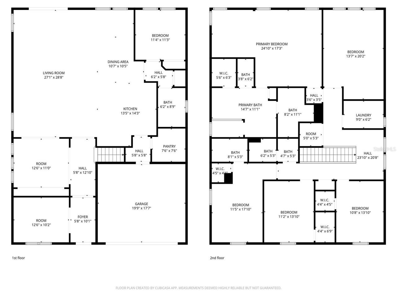
Multiple Offers Received - No further Showings. All offers due by noon on 2/24/2026. WELCOME to this spacious two-story home in the desirable Reserve at Golden Isle neighborhood of Avalon Park! Featuring 5 bedrooms, 4 full bathrooms, and a 2-car garage, this property offers incredible space, a functional layout, and endless potential to make it your own. The first floor showcases 12x24 porcelain tile in a brick pattern, crown molding, and 10-foot ceilings, creating a bright and open feel throughout the main living areas. The open-concept design includes a large living space, separate dining room, and a breakfast nook that flows into the gourmet kitchen, complete with espresso cabinets, stainless steel appliances, double oven, under-cabinet lighting, walk-in pantry, and an oversized center island perfect for gatherings. Downstairs also features a den/office with double doors, along with a guest bedroom and full bathroom, ideal for visitors or multi-generational living. Upstairs, the expansive primary suite offers a bonus sitting area, dual vanities, rain shower head, and walk-in closets. You’ll also find three additional bedrooms with large closets, two full bathrooms, and a convenient laundry room with sink. This home does need some TLC and presents a fantastic opportunity for buyers looking to add their personal touch, invest, or customize a large home in a prime location. Priced accordingly and full of potential! Conveniently located near University of Central Florida, Orlando International Airport, and the shopping, dining, and entertainment of Waterford Lakes Town Center. Motivated seller — bring your vision and schedule your private showing today!
Property Details
Additional Information
Additional Lease Restrictions
Please contact the HOA regarding any restrictions
Additional Parcels YN
false
Additional Rooms
Bonus Room, Den/Library/Office
Alternate Key Folio Num
322230700000370
Appliances
Dishwasher, Microwave, Range, Refrigerator
Association Email
dpugh@sentrymgt.com
Association Fee
191.5
Association Fee Frequency
Quarterly
Association Fee Requirement
Required
Association URL
www.sentrymgt.com
Association YN
true
Attached Garage YN
true
Available For Lease YN
1
Bathrooms Total Integer
4
Building Area Source
Public Records
Building Area Total
4535
Building Area Total Srch SqM
421.32
Building Area Units
Square Feet
Calculated List Price By Calculated SqFt
129.30
Carport YN
false
Construction Materials
Block, Stucco, Frame
Contract Status
Inspections
Cooling
Central Air
Country
US
Cumulative Days On Market
6
Current Price
500000.00
Direction Faces
North
Expected Closing Date
2026-04-10T00:00:00.000
Exterior Features
Rain Gutters, Sliding Doors
Fencing
Vinyl
Fireplace YN
false
Flood Zone Code
X
Flood Zone Date
2009-09-25
Flood Zone Panel
12095C0295F
Flooring
Carpet, Tile
Foundation Details
Slab
Furnished
Unfurnished
Garage Spaces
2
Garage YN
true
Heating
Central
Interior Features
High Ceilings, Kitchen/Family Room Combo, Open Floorplan, PrimaryBedroom Upstairs, Walk-In Closet(s)
Internet Address Display YN
true
Internet Automated Valuation Display YN
true
Internet Consumer Comment YN
true
Internet Entire Listing Display YN
true
Laundry Features
Laundry Room, Upper Level
Lease Restrictions YN
1
Levels
Two
List AOR
West Volusia
Living Area Meters
359.26
Living Area Source
Public Records
Living Area Units
Square Feet
Lot Size Acres
0.13
Lot Size Square Feet
5674
Lot Size Square Meters
527
Minimum Lease
1-2 Years
Modification Timestamp
2026-02-28T00:40:10.964Z
Monthly HOA Amount
63.83
New Construction YN
false
Num Of Own Years Prior To Lease
1
Occupant Type
Owner
Ownership
Fee Simple
Parcel Number
30-22-32-7000-00-370
Pet Restrictions
Please contact the HOA regarding any restrictions
Pets Allowed
Yes
Pool Private YN
false
Postal Code Plus 4
5008
Public Survey Range
32
Public Survey Section
30
Purchase Contract Date
2026-02-25
RATIO Current Price By Calculated SqFt
129.30
Realtor Info
As-Is, Subject to Approval
Road Responsibility
Public Maintained Road
Road Surface Type
Paved
Roof
Shingle
Room Count
10
Senior Community YN
false
Sewer
Public Sewer
Showing Requirements
Call Listing Agent 2, See Remarks, ShowingTime
Status Change Timestamp
2026-02-26T04:15:13.000Z
Stories Total
2
Tax Annual Amount
9334.54
Tax Block
00/37
Tax Book Number
11007/9285
Tax Legal Description
RESERVE AT GOLDEN ISLE 79/16 LOT 37
Tax Lot
37
Tax Year
2024
Total Acreage
0 to less than 1/4
Total Annual Fees
766.00
Total Monthly Fees
63.83
Township
22
Universal Property Id
US-12095-N-302232700000370-R-N
Unparsed Address
1214 FOUNTAIN COIN LOOP
Utilities
Public
Water Source
Public
Waterfront YN
false
Years Of Owner Prior To Leasing Req YN
1
Zoning
P-D
Neighborhood Map
Popup

Property Photos
Listing Photo
Listing Photo
Listing Photo
Listing Photo
Listing Photo
Listing Photo
Listing Photo
Listing Photo
Listing Photo
Listing Photo
Listing Photo
Listing Photo
Listing Photo
Listing Photo
Listing Photo
Listing Photo
Listing Photo
Listing Photo
Listing Photo
Listing Photo
Listing Photo
Listing Photo
Listing Photo
Listing Photo
Listing Photo
Listing Photo
Listing Photo
Listing Photo
Listing Photo
Listing Photo
Listing Photo
Listing Photo
Listing Photo
Listing Photo
Listing Photo
Listing Photo
Listing Photo
Listing Photo
Listing Photo
Listing Photo
Listing Photo
Listing Photo
Listing Photo
Listing Photo

MLS #MFRV4947438 Listing courtesy of Lpt Realty Llc provided by Stellar MLS.

Similar Listings

$459,900
1015 S Palm Avenue
Orlando
5BR/4BA
| Active
$459,997
38 N Alder Drive
Orlando
5BR/4BA
| Active
$510,000
1208 Sawgrass Pointe Drive
Orlando
5BR/4BA
| Pending



All listing information is deemed reliable but not guaranteed and should be independently verified through personal inspection by appropriate professionals. Listings displayed on this website may be subject to prior sale or removal from sale; availability of any listing should always be independent verified. Listing information is provided for consumer personal, non-commercial use, solely to identify potential properties for potential purchase; all other use is strictly prohibited and may violate relevant federal and state law. The source of the listing data is as follows: Stellar MLS (updated 3/14/26 12:37 PM) |

Listing Search



Translate Tool

Featured Listings
Windermere Real Estate
$1,000,000
5 BED
3 BATH
Upgraded One-Story Pool Home in Gated Community on Oversized Corner Lot Welcome to this beautifully upgraded one-story h... Read More
Windermere Real Estate
$760,000
4 BED
3 BATH
One or more photo(s) has been virtually staged. Welcome to this beautifully maintained four-bedroom, three-and-a-half-ba... Read More
Windermere Real Estate
$599,000
4 BED
2 BATH
Welcome to your dream home in the sought-after community of Lake Sawyer in Windermere! Introducing 7208 Tattant Blvd, a ... Read More
Windermere Real Estate
$3,200,000
4 BED
4 BATH
Pre-Construction. To be built. Pre-Construction. To be built. Pre-Construction | To Be Built | Designed for Unparalleled... Read More
Windermere Real Estate
$565,000
4 BED
2 BATH
One or more photo(s) has been virtually staged. Stop searching and start living in your private Windermere oasis at 9056... Read More
Contact Wendy Morris

407-575-5392

Wendy Morris LLC

Licensed in the State of Florida
BK 3146762
16797 Broadwater Avenue
Winter Garden, Florida 34787

Your privacy is our utmost concern. We will never sell your personal information. Privacy Policy
©2026 windermerehomes.net - all rights reserved. | Site Map