1-407-575-5392
Menu

10007 Little Alcove Loop, Winter Garden, FL

NEXT
PREV
$1,149,900

($394/sqft)

List Status: Active
10007 Little Alcove Loop
Winter Garden, FL 34787


4 beds
3 baths
2921 living sqft
Top Features
  • View: Park/Greenbelt
  • Subdivision: Waterleigh Ph 2b
  • Built in  2018
  • Single Family Residence
Description
Property Details
Additional Information
Additional Lease Restrictions
Please verify with HOA
Additional Parcels YN
false
Additional Rooms
Bonus Room, Breakfast Room Separate, Family Room, Formal Dining Room Separate, Inside Utility
Appliances
Built-In Oven, Convection Oven, Cooktop, Dishwasher, Disposal, Dryer, Microwave, Refrigerator, Washer
Association Amenities
Clubhouse, Fitness Center, Park, Playground, Pool
Association Email
NElbaz@lelandmanagement.com
Association Fee
250
Association Fee Frequency
Monthly
Association Fee Includes
Pool, Maintenance Grounds, Recreational Facilities
Association Fee Requirement
Required
Association URL
https://lelandmgt.com
Association YN
true
Attached Garage YN
true
Available For Lease YN
1
Bathrooms Total Integer
4
Building Area Source
Public Records
Building Area Total
3974
Building Area Total Srch SqM
369.20
Building Area Units
Square Feet
Calculated List Price By Calculated SqFt
393.67
Carport YN
false
Community Features
Fitness Center, Park, Playground, Pool, Tennis Court(s), Street Lights
Construction Materials
Block, Concrete, Stucco
Cooling
Central Air
Country
US
Cumulative Days On Market
54
Current Price
1149900.00
Direction Faces
South
Elementary School
Water Spring Elementary
Exterior Features
Sidewalk, Sliding Doors, Sprinkler Metered
Fireplace YN
false
Flood Zone Code
X
Flood Zone Date
2009-09-25
Flood Zone Panel
12095C0215F
Flooring
Carpet, Ceramic Tile
Foundation Details
Slab
Furnished
Unfurnished
Garage Dimensions
21x38
Garage Spaces
3
Garage YN
true
Heating
Central, Electric
High School
Horizon High School
Interior Features
Ceiling Fans(s), Kitchen/Family Room Combo, Open Floorplan, Solid Surface Counters, Solid Wood Cabinets, Walk-In Closet(s), Window Treatments
Internet Address Display YN
true
Internet Automated Valuation Display YN
true
Internet Consumer Comment YN
true
Internet Entire Listing Display YN
true
Laundry Features
Inside, Laundry Room, Upper Level
Lease Restrictions YN
1
Levels
Two
List AOR
Osceola
Living Area Meters
271.37
Living Area Source
Public Records
Living Area Units
Square Feet
Lot Features
Corner Lot, Oversized Lot, Sidewalk, Paved
Lot Size Acres
0.24
Lot Size Square Feet
10586
Lot Size Square Meters
983
Middle Or Junior School
Water Spring Middle
Minimum Lease
7 Months
Modification Timestamp
2025-10-04T19:05:31.365Z
Monthly HOA Amount
250.00
New Construction YN
false
Occupant Type
Vacant
Other Equipment
Irrigation Equipment
Ownership
Fee Simple
Parcel Number
07-24-27-7502-02-660
Patio And Porch Features
Covered, Front Porch, Patio, Screened
Pets Allowed
Yes
Pool Private YN
true
Postal Code Plus 4
4456
Previous List Price
1199900
Price Change Timestamp
2025-09-15T17:33:07.000Z
Property Condition
Completed
Property Description
Corner Unit
Public Remarks
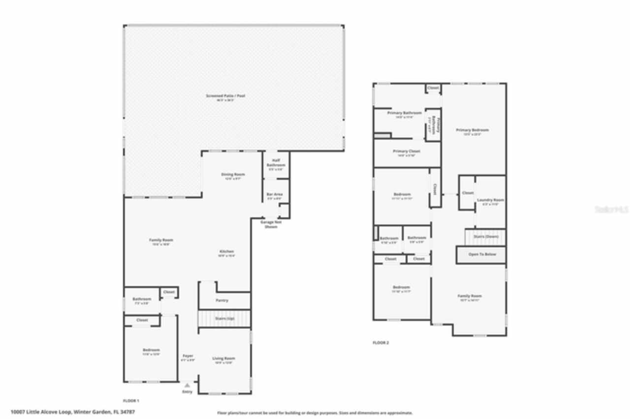
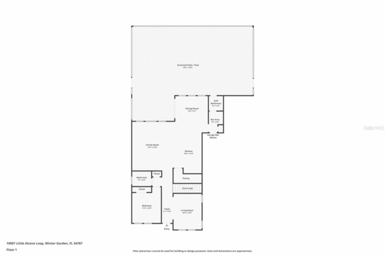
Stunning Emerald serie house, Selden model built in 2018 well maintained, featuring 4 bedrooms, 3.5 bathrooms, and approximately 2, 920 sq ft of living space. Situated on a premium corner lot of about 10, 585 sq ft, this home offers a 3-car tandem garage, spacious backyard, private wooded views, and a screen-enclosed private pool—perfect for year-round Florida living. The open-concept design includes a formal dining room, elegant foyer with wrought-iron staircase, and a gourmet kitchen with a large island, 42” cabinets with crown molding, granite countertops, stainless steel appliances, and a convenient drop zone from the garage. The owner’s suite boasts a tray ceiling, a spa-like en-suite bathroom with dual sinks, a garden tub, and a spacious walk-in closet. Additional features include a durable concrete tile roof, dual A/C units, and numerous upgrades: exterior lighting, sealed paver driveway and porch, landscape lighting, decorative stonework, epoxy-finished garage floor, and professional landscaping. Lawn care is included with HOA fee. Located in the highly sought-after Waterleigh community in Winter Garden, residents enjoy resort-style amenities: two community clubhouses, 4 resort-style pools, 2 fitness center, beach volleyball, 2 tennis courts, mini-golf, community garden, dog park, fishing pier, and scenic walking/biking trails. The neighborhood is beautifully landscaped with lakes, green spaces, and planned community events. Conveniently located just minutes from Historic Downtown Winter Garden, Winter Garden Village, and easy access to SR-429 for a quick commute to Orlando and Walt Disney World. Zoned for top-rated schools: Atwater bay Elementary, Water Spring Middle, and Horizon High School.
Public Survey Range
27
Public Survey Section
07
RATIO Current Price By Calculated SqFt
393.67
Realtor Info
As-Is, No Sign
Road Surface Type
Asphalt
Roof
Tile
Room Count
6
Security Features
Smoke Detector(s)
Senior Community YN
false
Sewer
Public Sewer
Showing Requirements
Call Listing Agent, See Remarks, ShowingTime
Spa Features
Heated, In Ground
Spa YN
true
Status Change Timestamp
2025-08-11T14:40:51.000Z
Tax Annual Amount
6381.42
Tax Block
00
Tax Book Number
94/90
Tax Legal Description
WATERLEIGH PHASE 2B 94/90 LOT 266
Tax Lot
266
Tax Year
2024
Total Acreage
0 to less than 1/4
Total Annual Fees
3000.00
Total Monthly Fees
250.00
Township
24
Universal Property Id
US-12095-N-072427750202660-R-N
Unparsed Address
10007 LITTLE ALCOVE LOOP
Utilities
BB/HS Internet Available, Cable Available, Cable Connected, Electricity Connected, Sprinkler Meter
Vegetation
Trees/Landscaped
Water Source
Public
Waterfront YN
false
Window Features
Blinds
Zoning
P-D
Neighborhood Map
Popup

Property Photos
Listing Photo
Listing Photo
Listing Photo
Listing Photo
Listing Photo
Listing Photo
Listing Photo
Listing Photo
Listing Photo
Listing Photo
Listing Photo
Listing Photo
Listing Photo
Listing Photo
Listing Photo
Listing Photo
Listing Photo
Listing Photo
Listing Photo
Listing Photo
Listing Photo
Listing Photo
Listing Photo
Listing Photo
Listing Photo
Listing Photo
Listing Photo
Listing Photo
Listing Photo
Listing Photo
Listing Photo
Listing Photo
Listing Photo
Listing Photo
Listing Photo
Listing Photo
Listing Photo
Listing Photo
Listing Photo
Listing Photo
Listing Photo
Listing Photo
Listing Photo
Listing Photo
Listing Photo
Listing Photo
Listing Photo
Listing Photo
Listing Photo
Listing Photo
Listing Photo
Listing Photo
Listing Photo
Listing Photo
Listing Photo
Listing Photo
Listing Photo
Listing Photo
Listing Photo
Listing Photo
Listing Photo
Listing Photo
Listing Photo
Listing Photo
Listing Photo
Listing Photo
Listing Photo
Listing Photo
Listing Photo
Listing Photo
Listing Photo
Listing Photo
Listing Photo
Listing Photo
Listing Photo
Listing Photo
Listing Photo
Listing Photo
Listing Photo
Listing Photo
Listing Photo
Listing Photo
Listing Photo
Listing Photo
Listing Photo
Listing Photo
Listing Photo
Listing Photo
Listing Photo
Listing Photo
Listing Photo
Listing Photo
Listing Photo
Listing Photo
Listing Photo
Listing Photo
Listing Photo
Listing Photo
Listing Photo
Listing Photo
Listing Photo
Listing Photo
Listing Photo
Listing Photo
Listing Photo
Listing Photo
Listing Photo
Listing Photo
Listing Photo
Listing Photo
Listing Photo
Listing Photo

MLS #MFRS5132434 Listing courtesy of Mbt Realty Llc provided by Stellar MLS.

Similar Listings

$1,050,000
17552 Lake Star Road
Winter Garden
4BR/3BA
| Active
$1,050,000
100 Temple Grove Drive
Winter Garden
4BR/3BA
| Active
$1,149,900
5365 Bowman Drive
Winter Garden
4BR/3BA
| Active
$1,149,900
1675 Amsel Falls Park Terrace
Winter Garden
4BR/3BA
| Active



All listing information is deemed reliable but not guaranteed and should be independently verified through personal inspection by appropriate professionals. Listings displayed on this website may be subject to prior sale or removal from sale; availability of any listing should always be independent verified. Listing information is provided for consumer personal, non-commercial use, solely to identify potential properties for potential purchase; all other use is strictly prohibited and may violate relevant federal and state law. The source of the listing data is as follows: Stellar MLS (updated 12/12/25 10:29 AM) |

Listing Search



Translate Tool

Featured Listings
Windermere Real Estate
$515,000
3 BED
2 BATH
Windermere Real Estate
$3,350,000
5 BED
5 BATH
Windermere Real Estate
$1,075,000
4 BED
3 BATH
Windermere Real Estate
$369,999
3 BED
2 BATH
Windermere Real Estate
$429,900
3 BED
2 BATH
Contact Wendy Morris

407-575-5392

Wendy Morris LLC

Licensed in the State of Florida
BK 3146762
16797 Broadwater Avenue
Winter Garden, Florida 34787

Your privacy is our utmost concern. We will never sell your personal information. Privacy Policy
©2025 windermerehomes.net - all rights reserved. | Site Map